物件概要
- 金額:消費税10%含む 5180万円
- 所在:横浜市旭区鶴ヶ峰本町2丁目10-14
- 交通:相鉄本線 鶴ヶ峰駅より徒歩15分
- 土地:実測103.41㎡
- 建物:1階45.92㎡ 2階 52.85㎡ 自動車車庫スペース7.45㎡ 合計 106.22㎡
- 築年:2025年9月新築
- 道路:東南側約4.4m公道 南西側約4.4m公道 の角地
- 用途:一種低層住居専用地域
- 建ぺい率:60% (角地緩和)
- 容積率:100%
- 地役権一部設定有(約10.2㎡)目的:電線の支持物の設置を除く電線路の施設のための地益権
主要設備
- シューズクローゼット
- 居室階段で入れる3回位置のロフト付き(天井高1400mm)
- TVモニターフォン
- ウォシュレット機能付きトイレ
- 食洗器付きシステムキッチン
- 三面鏡洗面化粧台
- 浴室乾燥機付ユニットバス
- キッチンパントリー
- 全居室2面採光の4LDK
- LDK19.6J

🌞 一日を通して陽光に包まれる、角地の新築分譲住宅。
南東側からは爽やかな朝日が差し込み、南西側からは穏やかな午後の陽射しを室内に取り込める理想的な住環境。両面が約4.4mの公道に面しており、開放感と利便性を兼ね備えています。日々の暮らしに、自然の光が心地よさを添えてくれます。
👩🎨 女性建築士ならではの繊細な感性が息づくデザイン。
生活の快適性を最優先に考えた設計には、清潔感やメンテナンス性の高さが随所に反映されています。都市型のフォルムと洗練されたカラーコーディネートが調和し、機能美と美意識が共存する住まいとなっています。

🚗 高低差のないフラットなカースペースで、毎日の駐車もスムーズに。
前面道路幅はゆとりの4.4m。車庫入れの際もストレスなく、運転が苦手な方でも安心してご利用いただけます。
静寂に包まれた住宅街の一角に佇む本物件は、開放的なライフスタイルを叶える理想の空間。
周囲の視線を気にすることなく、心ゆくまでご自身の時間を満喫いただけます。日々の運転に余裕が生まれ、来客時にも安心です。
月々返済例

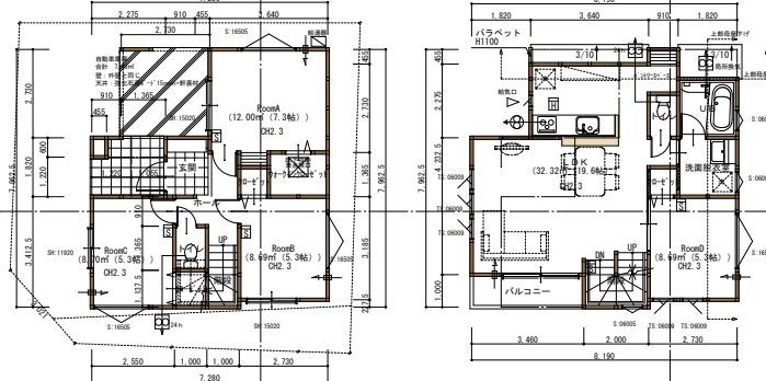
間取りガイド

全体(プランの良さ・導線)
- 1F=プライベート、2F=LDK+水回りという上下分離で、来客時も生活感を見せにくい。寝室まわりの静けさも確保しやすい。
- 玄関→階段→LDKが一直線の主動線。買い物帰りも迷いなくキッチンへ行け、回遊が少ない分だけ散らかりにくい。
- 2Fに洗面・浴室・トイレが集約され、家事が短い動線で完結。洗濯→バルコニー干し→取り込み→その場で畳むまでが近い。
- バルコニー面を主採光面として設計されており、LDKの明るさと風抜けが期待できる(対面窓で通風計画が取りやすい)。
- 図面に「準耐火45分構造」の記載があり、防火・隣棟間の安心感や保険面での優位が見込める(地域条件により異なる)。
1F(個室・玄関・収納まわり)
※以下写真はイメージです。現地撮影は近日行います

玄関(+ポーチ周り)
- 屋内外の土間レベル差が明確で、濡れ物・アウトドア用品の仮置きに向く。ベビーカー/ゴルフバッグ配置も想定しやすい。
- 入って正面に視線の抜けがあり、来客時に家の印象が良い。姿見ミラーと腰掛けベンチを置くと、外出準備が時短に。
- 荷物の一時置き棚(鍵・マスク・宅配受領品)を壁際に計画すると散らかり防止。コンセント位置を活かせば充電基地にも。
- 雨天時の傘の水切り動線を短くできる。傘立て→タオル掛け→玄関収納の順で配置するとフロアが濡れにくい。
- 宅配ボックスやポストと連動すると不在時受け取り→室内搬入が効率化。2F LDKでもストレスが少ない。

洋室(1F・6畳前後想定)
- 寝室/客間/ワークルームのいずれにも転用しやすい矩形。ベッドを壁付けで置くと掃き出し窓の動線が保てる。
- 1階は音と振動が上階に伝わりにくいので、電子ドラムやアンプ小音量練習、子ども部屋にも向く(近隣配慮は必要)。
- 玄関から近いので独立性が高く、親世帯の寝室や在宅カウンセリング/施術室のような用途にも適合。
- クローゼットと階段下収納を組み合わせると、季節家電・スーツケースの定位置が作りやすい。
- 将来の二世帯化/賃貸化も視野に、ドア位置とコンセント計画が良い(家具のレイアウト替えに強い)。

階段・ホール
- 玄関から直登の階段で、帰宅後すぐ2Fへ。買い物袋・ランドセルの一時掛け用に手すりの位置と耐荷フックを計画すると便利。
- 踊り場付きで安全性と移動視線の余裕がある。ベビーゲートやペットゲートも設置しやすい形状。
- 階段下収納は日用品・工具・非常用備蓄の最適地。湿気対策に換気口かスノコ棚を併用するとカビに強い。
- 掃除機コンセントを1F/2Fそれぞれ近くに確保すると、コード式でも取り回しがラク(コードレスなら充電基地を階段下へ)。
- 壁面をギャラリー壁にして家族写真やアートを飾ると、縦動線が「居心地の良い通路」に変わる。

2F(LDK・水回り・もう一室)
LDK(16〜18帖級想定)
- キッチン→ダイニング→リビングの流れがまっすぐで、配膳・片付けが短距離。来客導線もスムーズ。
- バルコニー側の開口で日中の明るさが確保しやすい。テレビ壁は逆側に据えると映り込みが減る。
- 料理中も家族の様子が見渡せ、コミュニケーションが自然に取れる。小さな子のリビング学習とも相性が良い。
- 回遊動線が少ない=散らかりにくい。ソファ背後に“家族共用の充電棚+書類トレー”を設けると紙類が溜まりにくい。
- 音楽・映像好きなら、スピーカーの配置はバルコニーと反対側の壁面が基本。配線は巾木内やラグ下で隠せる。

洋室(2F側の小部屋/5〜6帖想定)
- ベビー/キッズルーム→将来の書斎へ移行しやすい。LDK隣接で見守りやすく、音も適度に届く。
- 浴室・洗面に近く、**家事室(アイロン・裁縫・衣類補修)**としても活用可。可動棚と有孔ボードで“見せる収納”が便利。
- 来客の簡易宿泊にも使える。折りたたみマットレス+リネン収納を壁一面にまとめると転用が速い。
- 扉を開放して**“続き間リビング”**風に使えば、ホームパーティや撮影時に広く見せられる。
- 将来ワークスタイルが変わっても、防音パネル+吸音カーテンでミニスタジオ化が可能(配線は床見切りで処理)。

設備ごと(居室以外も)
キッチン
- 2F配置で配膳・片付けがLDK内で完結。家族動線と交差しにくく、夕食ピークの混雑が起きにくい。
- 冷蔵庫→シンク→コンロの三角動線を短く保てる。背面カップボードで家電(レンジ・炊飯・ケトル)を一列管理。
- パントリー代替として、可動棚+引き出しストッカーを背面に。週次のまとめ買いにも強い。
- ゴミ動線はバルコニー側に一時置き→収集日に1Fへが現実的。ニオイ対策に分別ごみ箱は密閉型を選ぶ。
- 調理中でもリビングの様子が見られ、家族会話・宿題見守りが自然にできる。ハイカウンターで軽食も。

洗面(脱衣)
- 浴室横並びで洗濯・風呂支度の往復が最短に。タオル・パジャマ収納は洗面室内に造作すると“取りに戻る”が消える。
- 洗濯→バルコニー干し→取り込み→その場で畳むまでが短距離。ハンガーパイプ+可動棚で室内干しも選べる。
- 朝の渋滞対策にミラー横の小棚を追加すると、歯ブラシ・ドライヤー・整髪料が出し入れしやすい。
- 来客時は洗面だけ使わせて脱衣は見せないゾーニングが可能(扉の閉め方を運用ルール化)。
- コンセントは2口以上+独立ブレーカーが安心。電動歯ブラシや美顔器、ドライヤーの同時使用に備える。

浴室
- 2F配置で外気に近く乾きやすい。窓があれば自然換気+日射でカビ抑制。無窓なら24h換気と送風乾燥を活用。
- 1616サイズ相当を想定。腰掛け洗い・子どもと入浴・介助もしやすい。手すりを後付けできる下地があると安心。
- 浴室乾燥機があれば梅雨・花粉シーズンに強い。バルコニーとの併用で“干し分け”ができる。
- 掃除負担を減らすには、壁パネル目地の少ない色柄と、マグネット小物で床置きを極力ゼロに。
- ガス/電気給湯の効率は入浴時間の集中で向上。家族の入浴順を詰める運用で光熱費カット。

トイレ(2F中心、1F設置があれば同様)
- LDKに隣接し過ぎない配置で、音・ニオイのプライバシーが取りやすい。手洗い器付きなら来客時もスマート。
- 収納ニッチ(トイレットペーパー12ロール+掃除用品)があると見栄えが保てる。背面は可動棚が有効。
- 自動開閉・自動洗浄タイプでも停電運用を確認(手動レバーの場所を家族で共有)。
- 換気扇+窓のダブル換気だと短時間でクリア。消臭は天井付近にアロマディフューザーが効く。
- 夜間に配慮して足元灯と静音便座を。高齢者は手すり位置とペーパーホルダー距離を実寸で確認。

バルコニー
- 物干し→取り込み→その場で畳むが最短。布団干しもラク。物干し金物はロングアーム型を選ぶと掛け替えが減る。
- 目隠しスクリーンで道路・隣家からの視線をカット。椅子と小テーブルで朝食/ワークのサブ空間にも。
- 収納ボックスに防災水・園芸用品・バーベキュー小物を。耐候性ボックスなら見た目もスッキリ。
- エアコン室外機置場は風下側に寄せると洗濯物が乾きやすい。ドレンの排水経路は詰まり防止を定期点検。
- 夜間用に足元間接照明を仕込むと安全・雰囲気ともに向上。虫寄り低減のため電球色+短時間点灯が◎。

階段
- 踏面・蹴上のバランスが良く、昇降が疲れにくい。手すり連続で安全性確保。小さなお子さまはゲート設置を想定。
- 壁付けの**回遊ライト(フットライト)**があると夜間の安全性が段違い。人感センサーで消し忘れも防げる。
- 掃除用コンセントを近くに確保。ロボット掃除機の基地は階段下に置くと動線を邪魔しない。
- 壁面を本棚ニッチにすると“読書動線”が生まれる。コミックや文庫なら奥行120mmで成立。
- 手すり下にコートフック列を設けると、外出上着の一次置きが整い、リビングに持ち込まなくて済む。

収納(全体)
- 1Fクローゼット+階段下で大型・低頻度を集約、2Fは日常・高頻度をLDK近接で吸収する役割分担がしやすい。
- LDKには充電・文具・薬・書類の定位置を“壁一面の浅型収納”で確保。奥行200〜250mmで充分機能する。
- 洗面には下着・タオル・洗剤の“使用場所収納”。動作に合わせて引き出し/オープン棚を混在。
- バルコニー近くに室内物干し・アイロン台収納を作ると“洗濯が回る家”になる。
- 玄関は靴・外遊び・防災・車用品のゾーニングを色分けボックスで。季節で入れ替える運用が効果的。

カースペース
- 玄関に近く雨の日の荷物搬入が短距離。段差解消スロープを用意するとキャリーやベビーカーが楽。
- 自転車2〜3台も並置できる幅なら、スタンドレールで整列させると出し入れが早い。屋根があると尚良い。
- 将来的なEV・PHEV充電を見込んで、100V屋外コンセント+将来配管ルートを確保しておくとコスト最適。
- 防犯灯+人感センサーで夜間の安全性UP。カメラ一体型も検討すると来客通知にもなる。
- 雨水の勾配・排水桝を確認。落ち葉が溜まる位置にストレーナーを設けると詰まりを予防。

まとめの使い分けアイデア
- 2F小部屋は「キッズスペース→学習→書斎」へ成長対応。1F個室は「親の寝室/独立ワーク室」で静けさ重視。
- **“洗濯動線の短さ”**がこの間取りの大きな武器。干す・畳む・しまうを2Fで完結させる設計がフィット。
- 音・匂い・視線のコントロールがしやすく、来客型のライフスタイルにも向く。撮影・配信にもレイアウトしやすい。
🖥 在宅勤務を踏まえた具体的な活用提案
1F 洋室(6帖前後)
- 独立ワークルームに最適。玄関から近いので、来客・配達対応や外出の切り替えがしやすい。
- 階段下収納にプリンター・ルーターを置けば、配線も集中管理できる。
- デスクは 窓側に横並び配置で自然光を利用、画面映り込みを避けるには遮光ロールスクリーンを併用。
- 書棚は壁一面に低めで設置し、上部はアートやホワイトボードで “リモート会議背景” として映える演出が可能。
- 将来は子ども部屋にも転用できるので、可動棚・移動式デスクを採用すると長期的な柔軟性が確保できる。
2F 小部屋(5帖前後)
- こちらを サブワークスペース/家族学習室 として運用可能。
- LDKと近いので、家事をしながらの 「ながら作業」 に向く。軽作業デスクや子どもの宿題机として配置。
- 扉を閉じれば在宅勤務の「サテライト個室」としても使えるが、防音性を重視するなら吸音パネルやドア隙間シールで補強。
- 将来は寝室・趣味部屋としての利用にも転用可能。
- バルコニーに近いため、観葉植物や小型水槽を置くと「癒し空間」として気分転換になる。
LDK(2Fメイン)
- 仕事+家族団らんの両立空間。在宅勤務の日は、ダイニングテーブルを拡張して「セカンドデスク」にも活用。
- バルコニーに面して光が十分なので、明るさと換気で長時間作業が快適。
- Wi-Fiルーターをリビング収納に置くと、上下階とも安定した通信環境を確保できる。
- リビングの一角に「半個室的なデスクコーナー」(パーテーション+棚)を設ければ、生活音を分離しながら仕事が可能。
- 来客時にはすぐ片付けられる「可動式デスク&ケーブル収納ボックス」を導入するとプロ感が出せる。
玄関+カースペース
- 在宅ワークでは 宅配荷物が増えるため、宅配ボックスや大型の玄関収納を重視。
- 玄関脇に「荷受け専用の棚(印鑑・スキャナー付き)」を置くと、仕事資料やサンプルの受け取りがスムーズ。
- カースペースに屋外コンセントを追加すると、EV充電だけでなく 在宅勤務用の撮影機材やDIY作業にも活用できる。
洗面・浴室
- 在宅中は「カメラに映る身だしなみ」のため、洗面所に自然光+調光ライトを確保すると便利。
- 浴室乾燥機で洗濯動線を短縮できるので、仕事の合間の 「隙間家事」 がしやすい。
- 脱衣所の収納棚に「仕事着専用エリア」を設けると、朝の切り替えが早い。
💡 提案まとめ
- メインデスク=1F洋室(静かな集中環境)
- サブデスク=2F小部屋 or LDK一角(軽作業・家族学習兼用)
- 家具選びのコツ
- 映像会議を意識した「背景計画」
- デスク周辺に集中収納(書類・ケーブル)
- バランスボールやスタンディングデスクで健康対策